A. Basic Considerations:
1. Quantity and Pressure - Water distribution systems shall be designed, constructed, and operated to provide an adequate supply of water at a pressure of not less than 20 psi (140 kPa) at ground level at all points in the distribution system under all conditions of flow. The normal working pressure in the distribution system should be approximately 60 psi (410 kPa). Pressures in excess of 100 psi (690 kPa) may be necessary because of low elevations with high system pressures. Pressure reducing valves may be used to lower the pressure in these areas if required.
Distribution mains for municipalities should be sized to meet peak hourly use plus fire demand and RWD mains should be sized to handle peak hourly demand. In the absence of metered data, peak hourly demand can be assumed equal to twice the maximum daily demand or four times the average daily flow. Methods for estimating peak consumer demand are provided in the AWWA Manual of Water Supply Practices M22 Sizing Water Service Lines and Meters (29).
The minimum size of water mains for providing fire protection and serving fire hydrants shall be 6 in. (15 cm) in diameter. Larger size mains may be necessary to provide sufficient fire flow while maintaining the minimum residual pressure. When fire protection is to be provided, system designs shall be in accordance with the PWSS's designated procedure for determining fire flow requirements. One of the more widely utilized methods for calculating fire flow requirements was developed by the Insurance Services Office, Inc. (30). This procedure, as well as other methods, are evaluated in the AWWA Manual of Water Supply Practices M31, Distribution Requirements for Fire Protection (31).
2. Quality - The safety and palability of potable water should not be degraded in any manner while flowing through the distribution system. KAR 28-15-13 establishes the quality requirements for drinking water and KAR 28-15-14 lists the monitoring requirements for the laboratory tests.
3. General Pipeline Location
- a. Use available data on topography, soil, geology, and climate.
- b. Tunneling should be considered only when it is economically justified and when there are no feasible alternate routes.
- c. Select shortest feasible route from intake to delivery.
- d. Make lines accessible for future construction and repairs.
- e. Avoid rough or difficult terrain.
- f. Special engineering evaluations should be given where disasters such as landslides, 100-year floods, or other hazards are likely to cause breakage or outage.
B. Protection Considerations:
1. Separation of Water Mains and Sewers:
- a. Gravity Sanitary Sewers - When potable water pipes and gravity sanitary sewers are laid parallel to each other, the horizontal distance between them shall be not less than 10-ft. (3.0 m). The distance shall be measured from edge to edge. The laying of water pipes and sanitary sewers shall be in separate trenches with undisturbed earth between them. In cases where it is not practical to maintain a 10-ft. (3.0 m) separation, KDHE will consider proposals providing equivalent protection by other methods on a case-by-case basis, if supported by data from the design engineer. Equivalent protection may require sanitary sewer construction with one of the following additional protective features: concrete encasement, vacuum sewers, or jointless pipe such as polyethylene or cured-in-place.
When a water pipe and a sanitary sewer cross and the sewer is 2 ft. (0.6 m) or more (clear space) below the water pipe, no special requirements or limitations are provided herein. At all other crossings, the sanitary sewer is to be constructed of one of the following materials (or approved equal) and pressure tested to assure water tightness pursuant to Chapter VI of the KDHE Minimum Standards of Design of Water Pollution Control Facilities:
Ductile iron pipe conforming to ASTM A536 or ANSI/AWWA C151/A21.51 with minimum thickness class 50, and gasketed, push-on, or mechanical joints in conformance with ANSI/AWWA C110/A21.10 or ANSI/AWWA C111/A21.11.
PVC pipe conforming to ASTM D3034 with minimum wall thickness of SDR41, ASTM F679, ASTM F789, or ASTM F794, with gasketed push-on joints in conformance with ASTM D3212.
Reinforced concrete pipe conforming to ASTM C76 with gasketed joints in conformance with ASTM C361 or ASTM C443.
Joints in the sewer pipe shall be located as far as practical from the intersected water main.
Where a water main is laid across or through an area where there is an existing sanitary sewer, which is not constructed of one of the above specified materials and is 2 ft. (0.6 m) or less below the water pipe, the existing sewer shall be encased in concrete with a minimum of 6 in (15 cm) thickness for a 10 ft. (3.0 m) distance on each side of the crossing or the crossed section of sewer replaced to meet the above specified construction requirements. KDHE will consider proposals providing equivalent protection by other means on a case-by-case basis, if supported by data from the design engineer.
- b. Sewer Connections - There are to be no physical connections between any parts of the potable water system with building sewers, sanitary sewers, or wastewater treatment facilities by means of which it would be possible for sewage, even under exceptional circumstances, to reach the wells, storage reservoirs, or distribution systems.
- c. Pressure Sewer Lines - When force mains run parallel to water lines, the separation distance shall be as far as practical, but at least a 10 ft. (3.0 m) horizontal separation shall be maintained. There shall be at least a 2-ft. (0.6 m) vertical separation at crossings with the water main crossing above the sewer force main. In cases where it is not practical to maintain the required vertical or horizontal separation distance between a water line and a sanitary sewer force main, KDHE will consider proposals providing equivalent protection by other methods on a case-by-case basis, if supported by data from the design engineer.
- d. Sewer Manholes - No water pipe shall pass through or come in contact with any part of a sewer manhole.
- e. Storm Sewers - The separation distance between a storm sewer (which is not a combined storm/sanitary sewer) and a water main should be based on geotechnical considerations. Required separation distances between water mains and combined storm/sanitary sewers are equivalent to those for water mains and gravity sanitary sewers.
- f. Drains - Underground drains from fire hydrants or valve pits should not be directly connected to sanitary or storm drains.
2. Separation of Water Mains and Other Pollution Sources - It is of utmost importance that potable water lines be protected from any source of pollution. The following shall pertain to instances where septic tanks, absorption fields, waste stabilization ponds, feedlots, or other sources of pollution are encountered.
- a. A minimum distance of 25-ft. (7.6 m) shall be maintained between all potable water lines and all septic tanks or waste stabilization ponds.
- b. Under no circumstances shall a water line extend through a septic tank absorption field or feedlot. All water lines shall be located a minimum of 25 ft. (7.6 m) from the farthest known extent of any sewage contamination. Under no condition will it be considered that encasement of the water main through an area of real or potential pollution would provide the protection needed to the water supply.
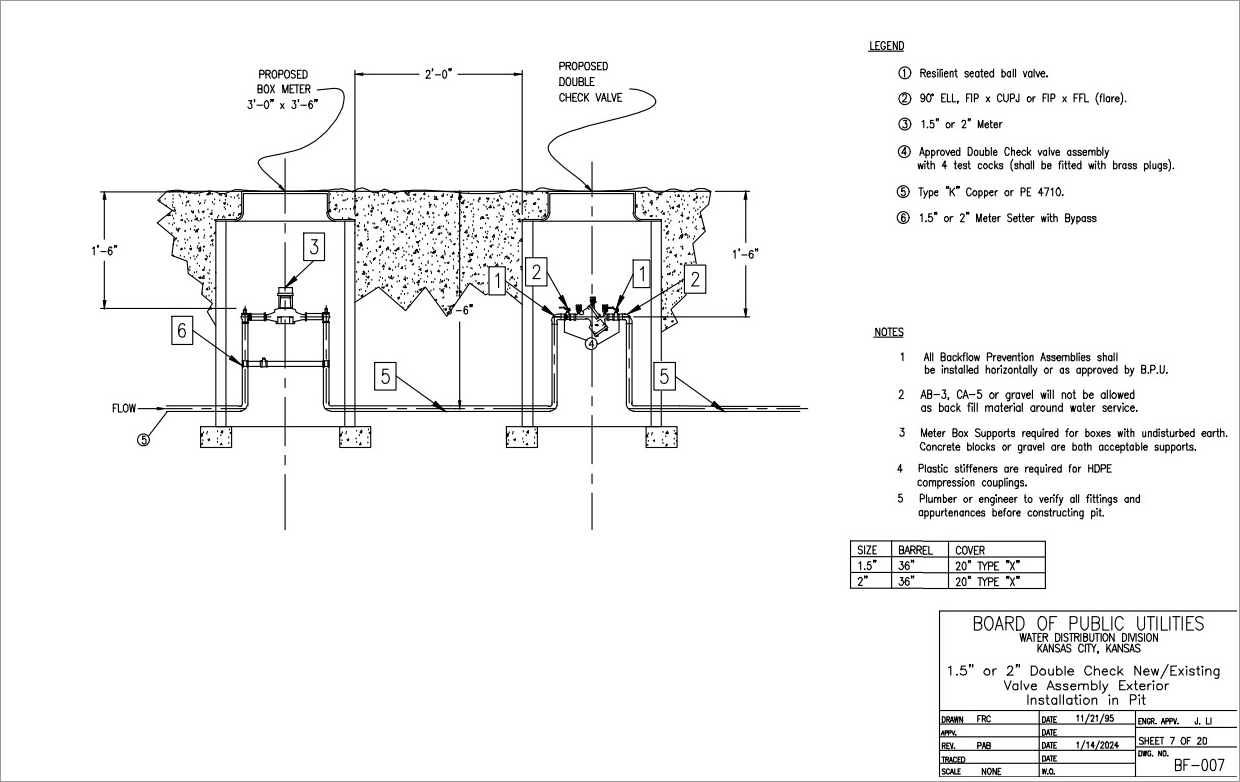
3. Cross Connections - There shall be no physical connection between the PWSS and any pipes, pumps, hydrants, tanks, or non-potable waters supplies whereby unsafe water or other contaminating materials may be discharged or drawn into the system. KDHE approval shall be obtained for interconnections between potable water supplies. KDHE does not approve of interconnections of RWD lines and individual or independent water supply sources such as home wells. Neither steam condensate nor cooling water from engine jacket or other heat exchange devices shall be returned to the potable water supply.
KSA 65-171g prohibits the contamination of water (and air) by sewage through direct connection or backsiphonage and KAR 28-15-18 (h) requires each PWSS to have a formal cross-connection prevention program. KDHE must approve the program used to accomplish the control. AWWA, USC, and USEPA have published cross-connection control manuals (32-34).
The water purveyor should be aware of any situation requiring inspection and/or reinspection necessary to detect hazardous conditions resulting from cross connections. If, in the opinion of the utility, effective measures consistent with the degree of hazard have not been taken the water purveyor should take such measures as deemed necessary to ensure that the PWSS is protected from contamination. Such action would include the installation of a backflow protection device consistent with the degree of hazard or discontinuance of the service.
4. Line Crossings - Special precautions should be taken to prevent possible damage to line crossings.
- a. Surface Water crossings - Surface water crossings, both over and under water, present special problems which should be discussed with KDHE before final plans are prepared. Where the ground has inadequate bearing capacity, pile supports, stringers, or other acceptable methods shall be used. Pipeline crossings of perennial streams having 50 or more square miles (130 km2) of drainage area above the proposed project site require a permit from DWR other than directionally-bored crossings or crossings consisting of pipelines non-obstructively attached to an existing bridging structure.
- 1) Above-Water Crossings - The pipe shall be adequately supported, protected from damage and freezing, and accessible for repair or replacement.
- 2) Underwater Crossings - Underground pipelines shall be buried a sufficient depth below streambeds to prevent exposure. On navigable streams, underground pipelines shall be buried at a minimum depth of 7-ft.(2.1 m) beneath the streambed. On all other streams, underground pipelines shall be buried at a minimum depth of 5-ft. (1.5 m) beneath the streambed.
- b. Railroad Crossings and Mains Near Tracks - Where a water main crosses under railroad tracks, all joints lying within 10-ft. (3.0 m) of the rails shall be either mechanical joints with rubber gaskets or pipe with bell joints. Also local requirements should be investigated. Some railroads require that the water main be enclosed in a culvert, tunnel, or conduit to reduce the effects of vibration, to provide drainage in case of leakage or rupture of the pipe, to reduce damage to the track, and to facilitate repairs.
5. Pressure - When static pressures exceed 100 psi (690 kPa), pressure reducing devices should be provided on mains in the distribution system or on individual house service lines.
6. Dead-Ends - Dead-ends should be minimized by looping of all mains. Where dead-end mains occur they should be provided with a fire hydrant if flow and pressure are sufficient, or with an approved flushing hydrant, or a blow-off for flushing purposes. Flushing devices should be sized to provide flows which will give a velocity of at least 2.5 ft./sec. (0.76 m/s) in the water main being flushed. No flushing device shall be connected directly to any sewer.
Where dead-end lines are necessary in the first stage of construction of a pipe system, the pipe layout should be designed for future additions and connections to provide for water circulation in the existing systems.
7. Repairs, Replacement and Extension of water Mains - The system shall be maintained so as to prevent its contamination during necessary repairs, replacements, or extensions of mains. When pressure in any part of the distribution system becomes abnormally low, customers in the area shall be notified of necessary protective health precautions.
8. Frost - The top of all water pipes should be at least 6 in (15 cm) below the maximum recorded depth of frost penetration in the area of installation. The minimum depth of water mains should be 3-ft. (0.9 m) from the ground surface to the top of the pipe.
9. Plastic Pipe - Plastic pipe intended for transport of potable water shall be evaluated and certified as safe for this purpose by a testing agency acceptable to KDHE. The evaluation should be in accordance with requirements for chemical extraction, taste, and odor, that are no less restrictive than those included in NSF Standard 14 (28). The seal or mark of the laboratory making the evaluation shall be included on the pipe.
10. Pressure and Leakage Test - Pressure and leakage tests shall be conducted on each newly installed water main in accordance with AWWA Standards or KDHE Procedures for Pressure and Leakage Testing of Mains (Appendix C). The allowable leakage shall not exceed that established by AWWA Standards or KDHE Procedures.
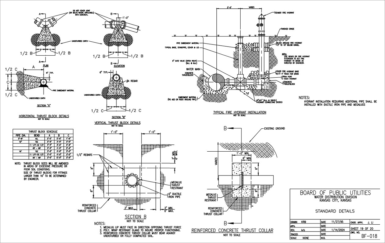
11. Thrust Blocks - All tees, bends, plugs, and hydrants shall be provided with reaction blocking, tie rods, or joints designed to prevent movement.
12. Valves - The systems shall be provided with sufficient valves to permit necessary repairs without undue interruption of service over any appreciable area. Blow-off connections to sewers or sewer manholes are not permitted.
13. Sanitary Precautions - Sanitary precautions shall be taken in laying new pipe, especially in preventing the introduction of foreign materials into the pipe. Water should be kept out of the trench where new pipe is laid and open ends shall be plugged or capped overnight to eliminate potential sources of contamination.
The selection of materials is critical for distribution piping in locations where there is likelihood that the pipe will be exposed to significant concentrations of pollutants comprised of low-molecular-weight petroleum products, organic solvents, or their vapors. Pipe materials such as polyethylene, polybutylene, polyvinyl chloride, and elastomers, such as those used in jointing gaskets and packing glands, may be subject to permeation by lower molecular weight organic solvents or petroleum products. If a water main must pass through such a contaminated area, materials impermeable to the particular contamination shall be used for pipe walls, jointing materials, etc. as certified by the manufacturer of the pipe.
Disinfection - All water shall be properly disinfected before it reaches the first (nearest) consumer on the distribution system. Water stored for prolonged periods in reservoirs may require re-disinfection upon re-entry to the system. New mains and repaired main sections shall be disinfected according to applicable AWWA Standards or KDHE Water Main Disinfection Procedures (Appendix D) before being placed in or returned to service. When connections are made to an existing system, the exposed pipe interiors should be wetted with a 500-mg/L chlorine solution before closure.
14. Deposits and Corrosion - Corrective water treatment should be practiced where excessive deposits of chemical precipitates or biological growths or where corrosion occurs in the mains. Disinfection will control biological growths and water stabilization should be used to control chemical precipitation and minimize pipe corrosion (see Section L on Stabilization).
Chemicals added to the water for corrosion control shall conform to the applicable AWWA Standards (4) and shall be approved by KDHE. The corrosive effects of finished water on non-ferrous metal pipe used for water service lines should be considered including possible toxicological effects upon consumers resulting from solution of the metals.
Water mains shall be protected from exterior corrosion in cinder cuts or in corrosive soils by use of selected material for backfield or by wrapping or coating the pipe exterior with protective material. A 10-point soil evaluation procedure for predicting conditions corrosive to underground piping is provided in AWWA Standard C105.
15. Plumbing - Water services and plumbing shall conform to relevant State and local plumbing codes.
C. Materials and Installation:
- 1. Used Pipe - Water mains that meet the above standards may reused but only after the pipe has been thoroughly cleaned and restored as much as possible to its original condition.
- 2. Joint Materials - Materials used in the joints of pipe shall meet applicable AWWA Standards (4). Mechanical joints or slip-on joints with rubber gaskets are preferred.
- 3. Valve, Air Relief and Blow-Off Chambers - At high points in water mains where air can accumulate, provision shall be made to remove the air by means of hydrants or air relief valves. Automatic air relief valves shall be used when flooding of the manhole or chamber may occur.
The open end of an air relief pipe from automatic valves shall be extend to at least 1 ft. (0.3 m) above grade and provided with a screened, downward-facing elbow. The pipe from a manually operated valve should be extended to the top of the spit. Manual operation of automatic air relief valves shall be possible.
Chambers or pits containing valves, blow-offs, meters, or other such appurtenances to a distribution system, shall not be connected directly to any storm drain or sanitary sewer, nor shall blow-offs or air relief valves be connected directly to any sewer. Such chambers or pits shall be drained to the surface of the ground where they are not subject to flooding by surface water, or to absorption pits underground.
- 4. Fire Hydrants - Due to a concern over freezing, only "dry-barrel" hydrants will be approved for installation and such hydrants shall comply with AWWA Standard C502. Hydrant drains shall not be connected to a sanitary sewer or storm sewer. Specifications for installation of hydrants may be found in the AWWA Manual of Water Supply Practices M17 Installation, Field Testing, and Maintenance of Fire Hydrants (35).
Fire hydrants should be connected only to water mains adequately sized to carry fire flows, and located to permit flushing of all mains and in compliance with local fire code requirements. Generally, fire hydrants should be provided at each street intersection and at intermediate points between intersections. Generally, hydrant spacing may range from 350 to 600 ft (110 to 180 m) depending on the area being served and the design flow. Additional discussion on criteria for the location of hydrants can be found in the AWWA Manual of Water Supply Practices M31 Distribution Requirements for Fire Protection (31).
- 5. Installation of Mains - Installations should follow applicable AWWA Standards, AWWA Manuals of Water Supply Practices, and/or manufacturer's recommended procedures. AWWA Standards include C600 for Installation of Ductile-Iron Water Mains and their Appurtenances. AWWA Manuals of Water Supply Practices include AWWA M23, PVC Pipe - Design and Installation and AWWA M11, Steel Pipe - A Guide for Design and Installation (36,37). Widely recognized industry guidelines for installation of PVC pipe are provided in the Handbook of PVC Pipe, by the Unibell PVC Pipe Assoc. (38). Similarly, for ductile iron pipe installation, the Ductile Iron Pipe Research Association publishes the Guide for the Installation of Ductile Iron Pipe (39).
A continuous and uniform bedding should be provided in the trench for all buried pipe. Backfill material should be tamped in layers around the pipe and to a sufficient height above the pipe to adequately support and protect the pipe. Stone found in the trench should be removed for a depth of at least 6 in. (15 cm) below the bottom of the pipe.
D. System Design:
Field Studies - The hydraulic performance of existing tests. Such testing should cover all typical portions of the community, and if need be, they can be extended into every block. The results obtained will establish available pressures and systems is determined most directly and flow, and will reveal existing available pressures and flow, and will reveal existing deficiencies. This information can then be made the basis for hydraulic calculations of extensions, reinforcements, and new grid layouts. Following expeditiously by pressure surveys and hydrant-flow completion of system improvements, additional tests can be conducted to determine how completely the desired changes have been accomplished.
Computer Modeling - No matter how well or complete the field study is done, hydraulic investigations of extensions and new and existing pipe networks should be confirmed using available computer analysis programs. Guidelines for performing such an analysis can be found in the AWWA Manual of Water Supply Practices M32 Distribution Network Analysis for Water Utilities (40).
Valve Spacing - Valves should be placed in numbers and locations that allow control of the system consistent with cost limitations, convenience and minimization of possible sanitary hazards. Valves in smaller mains are typically more numerous than those in larger mains. In transmission lines, valve spacing is determined by operating requirements, and thus are a matter of individual design. Typical spacings are not more than 500-ft. (150 m) in commercial districts, 800-ft. (240 m) in other districts, and where customers are widely scattered or where future development is not expected, not more than one mile (1,600 m).
Valve sizing - Valve sizes are normally the same as the water main in which they are installed except that in mains 30 in. (75 cm) and larger, line valves are sometimes smaller than the main size.
Fire hydrants should have a bottom valve size of at least 5 in. (13cm), one 4.5 in. (11 cm) pumper nozzle, and two 2.5 in. (6.3 cm) nozzles. The hydrant lead shall be a minimum of 6 in. (15 cm) in diameter. Auxiliary valves shall be installed in all hydrant leads.
Blow-off valves are usually sized 6 in. (15 cm) for mains 6 to 16 in. (15 to 40 cm), and 8 in. (20 cm) for mains 20 in. (50 cm) and larger.
Valve Location - Valves are usually located on the extensions of the various street property lines involved. Where property lines are not involved, the valves should be placed so that they can be referenced with respect to certain obvious monuments. Valves should be readily accessible in the event of a main failure.
Branch mains connecting to larger primary or secondary feeders which cross under arterial highways or streets should be valved close to the larger main before the crossing.
Blow-off valves and fire-hydrant valves should be located as close to the connected main as possible.
Buried valves normally are contained in a conventional valve box assembly and do not require vaults.
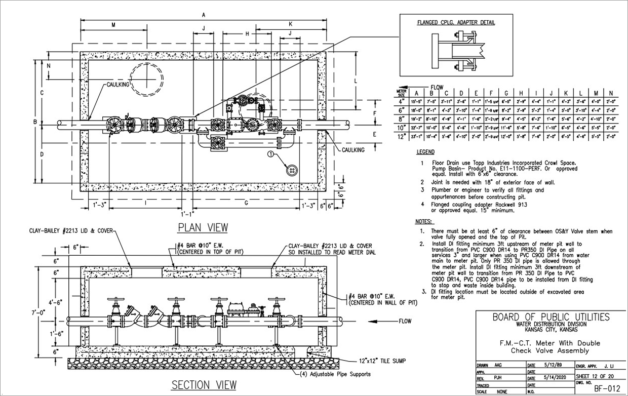
Metering - Each service connection shall be metered. A routine testing program is needed to check the accuracy of all meters in the system. Inoperable or malfunctioning meters should be repaired or replaced. Abnormal quantities of water use should be investigated to insure that service connections are not leaking or broken, especially where geologic conditions may prevent detection of leaking by observation.
Master meters which measure water supplies to the distribution system should be checked periodically for accuracy. They may either over-register or under-register, and the percent of error reflects directly on distribution systems losses. The proper selection and installation of the master meter is important.
When planning an installation, attention should be given to providing enough straight pipe ahead of the meter to ensure maximum uniformity of flow and therefore, accurate registration. Provisions should be made for testing the meter in place without interruption of service by using a test plug and a comparative test meter.
Meters shall meet applicable AWWA Standards (4). Recommended practices for the selection, installation, testing, and maintenance of water meters are provided in the AWWA Manual of Water Supply Practices M6 Water Meters - Selection, Installation, Testing, and Maintenance (41).
7. Water Loading Stations - Water loading stations present special problems since the fill line may be used for filling both potable water vessels and other tanks or contaminated vessels. To prevent contamination of both the public supply and potable water vessels being filled. The following principles shall be met in the design of water loading stations:
- a. A backflow prevention assembly, device, or method shall be utilized to ensure that there is no backflow to the PWSS. Possible devices or methods include the design of a mandatory air gap between the receiving tank, vessel, or container and the discharge end of the potable water supply pipeline not less than 2 times the diameter of the spout opening, or the installation of an backflow prevention or vacuum breaker assembly that meets KDHE requirements.
- The piping arrangement shall prevent contamination being transferred from a hauling vessel to others subsequently using the station.
- Hoses shall not be contaminated by contact with the ground.
CROSS CONNECTION CONTROL DEVICES:
A. Air Gap:
- Gap must be two pipe diameters (in no instance less than one inch).
- Must be inspected annually.
- Satisfactory for any material.
- Whenever practical the control method of choice.
B. Reduced Pressure Principle Backflow Preventer:
- Contains two specifically designed, soft seated, independently acting check valves with a reduced pressure zone (with relief valve) between the two checks.
- Shut off valves before and after the device.
- Satisfactory for most toxic materials.
- Significant pressure loss. (10 psi or more)
- Must be tested and inspected annually. Repaired as necessary.
C. Double Check Valve Assembly:
- Contains two soft seated independently acting check valves in series.
- Shut off valves before and after device.
- Adequate for non-toxic applications only.
- Minor pressure loss.
- Must be inspected and tested annually. Repaired as necessary.
D. Pressure Vacuum Breaker:
- Must be installed a minimum of 12" above highest point of usage.
- No back pressure, only back siphonage.
- Can operate under constant pressure.
- Shut off valve can be located beyond the vacuum breaker.
- Must be inspected and tested annually. Repaired as necessary.
E. Atmospheric Vacuum Breaker:
- Must be installed a minimum of 6" above highest point of usage.
- No back pressure, only back siphonage.
- Not for use under constant pressure.
- Shut off valve can be located ahead of the vacuum breaker.
- Must be inspected and tested annually. Repaired as necessary.
CROSS CONNECTION CONTROL DEVICES MUST BE INSPECTED, TESTED AND REPAIRED BY A TRAINED TECHNICIAN. ALL DEVICES SHOULD BE INSTALLED SUCH THAT THEY WILL BE ACCESSIBLE FOR REGULAR INSPECTION AND TESTING.
All devices must be tested and/or certified by an authority acceptable to KDHE. These authorities include the American Society of Sanitary Engineers (ASSE), American Water Works Association (AWWA), Foundation for cross Connection Control and Hydraulic Research, University of southern California (FCCCHR of USC), Canadian Standards association (CSA), Southern Building code Congress (SBCC) or Factory Mutual (FM). Other testing or certifying authorities may be acceptable by KDHE.